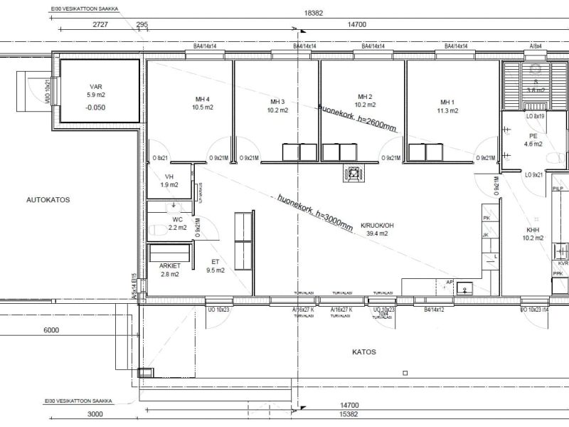
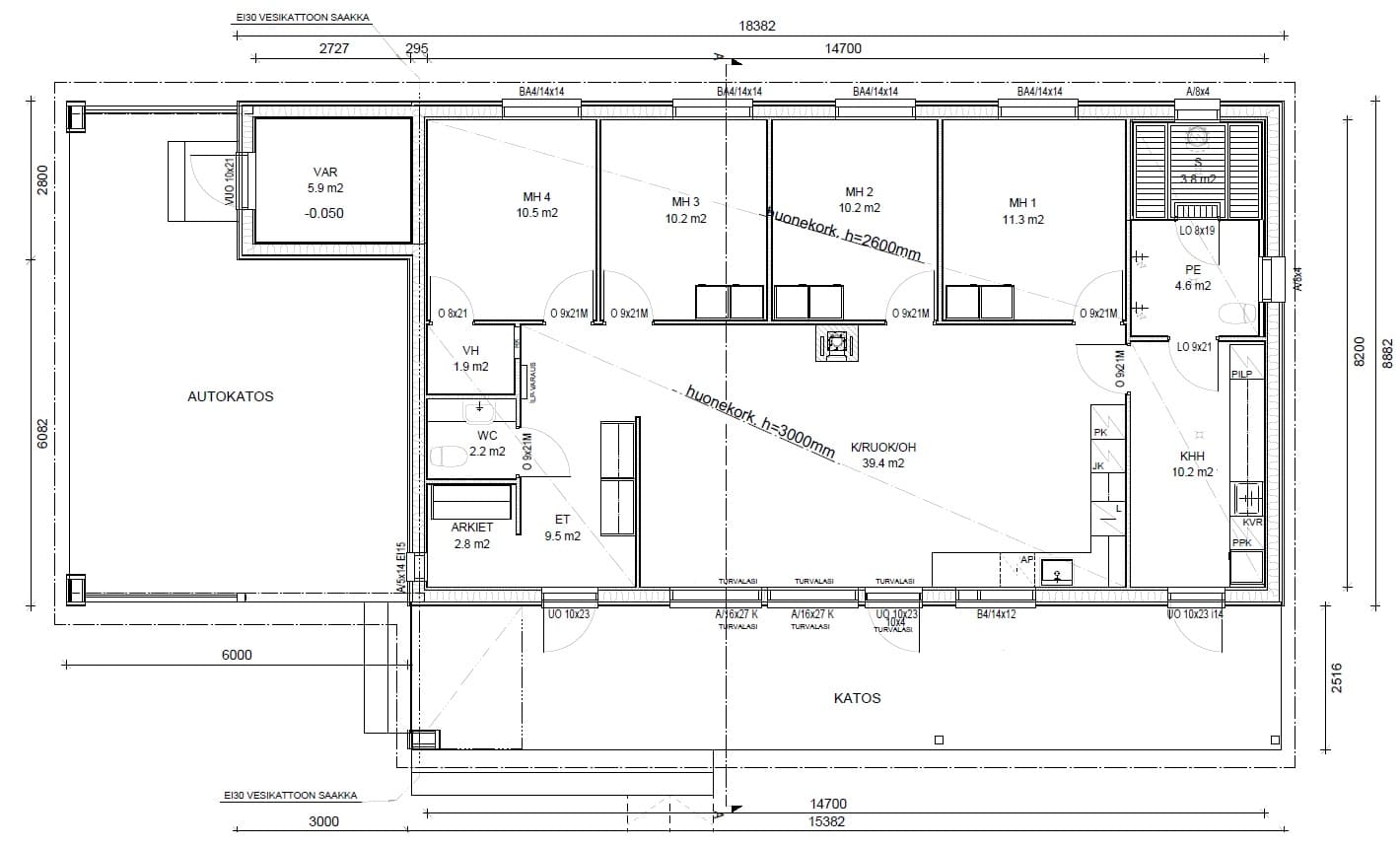
SEPELKYYHKY
Huoneistoala 120 m² | 4 mh, oh-k, vh, khh, kph, s, wc, et, arkiet (ak, var)
Moderni neljän makuuhuoneen koti isolla katetulla terassilla
Tässä kodissa on olohuone-keittiössä hulppea 3 metrin huonekorkeus ja isot ikkunat! Keittiöstä käynti isolle katetulle terassille. Neljä makuuhuonetta, joista yhdessä vaatehuone.
Kiintokalusteisiin, kodinkoneisiin sekä pintamateriaaleihin pääset vaikuttamaan itse. Ne ovat jo lähtötasoltaan laadukkaat vastaten nykypäivän vaatimuksia.
Sauna ja kylpyhuone muodostavat mukavan lasiseinällä erotetun kokonaisuuden. Paneloinnit ja vastakkain istuttavat tasolauteet vaaleaa haapaa. Etäohjattava Harvia Cilindro -pilarikiuas.
Lämmitysjärjestelmänä poistoilmalämpöpumppu vesikiertoisella lattialämmityksellä. Ostajalla mahdollisuus halutessa vaikuttaa lämmitysjärjestelmään.
Koti luovutetaan täysin valmiina, pihatyöt tehtynä: Nurmikko kylvettynä ja parkkialue sorastettuna.
Hinnat alkaen tasamaatontille. Lopullinen hinta määräytyy tontin mukaan. Kysy lisää myyjältämme!
ilman katos-varastoa alk. 277 000 €
katos-varastolla alk. 308 000 €
Mallistomme on monilta osin muunneltavissa kaikkiin tarpeisiin ja erilaisille tonteille. Kysy lisää muunneltavuudesta.






